ALUMINIUM
Srpski | English
TEHNOMARKET d.o.o.
ALUMINIUM PROFILE EXTRUSION
COMPOSITE PANELS
- PRODUCTS
- EXTRUSION
- ALUBOND
- PROJECTS
- CAREER
- COMPANY
Doors and windows
Highly energy efficient system TMT 79hi
Advanced systems with thermal break LIENAL
System without thermal brake TMH 45
System Aluminium-wood Convex TMD 56
System Thermal TMT 56
System Thermal TMT 64
TMT
64
System Slide TMSL
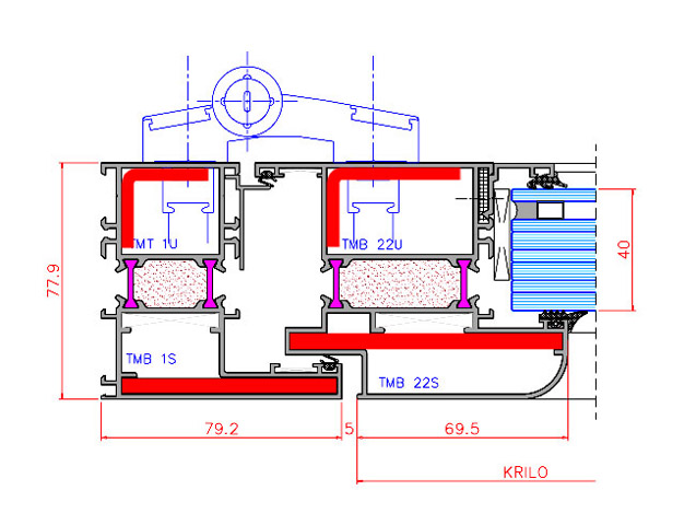
System Blindo TMB 78, TMB 86
Systems
Products
Aluminium profiles
Subconstruction for granite
Doors and windows
Supplying of Fabricators
Services
Bending constructions
Assembly of thermal break
Machining of Alubond
Doors and Windows
Without thermal brake TM45
Without thermal brake TMH45
Thermal TMT56
Thermal TMT64
Alum-wood Convex TMD56
High thermal efficiency TMT79hi
Blindo TMB78






















